Default sidemenu image
Search

Leave a Message

Thank you for your message. We will be in touch with you shortly.

Explore Our Properties

Property Description

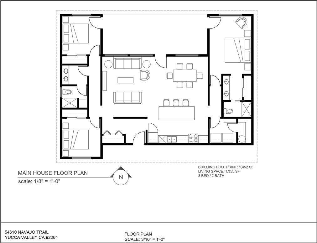
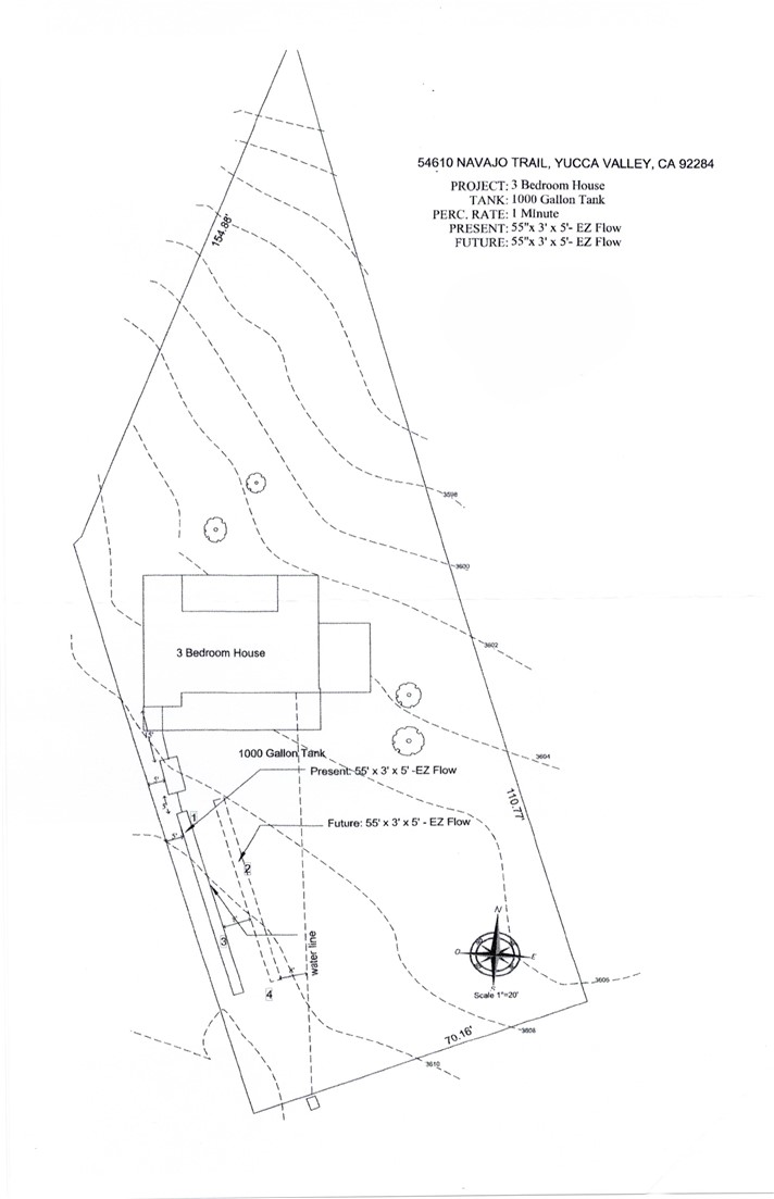
Ready to build your dream home? The current owners have done much work to get you started on your journey. Architectural designed (to spark your imagination) site plan, floor plan, and schematics - Done! An official Survey, which includes boundaries marked, and native plants identified - Done! Percolation Test Report, for the Septic system - Done! 3-D rendered model of the proposed site plan - Done! All that's left for you to do, for the most part, is submit your own engineered approved plans to obtain the permits, connect the utilities and install the septic, build your home, move in, and enjoy the amazing views of the mountains and the desert landscape. As a future bonus, the city of Yucca is currently getting closer to connecting this area to the sewer system, therefore, you might have a future opportunity to expand your home and/or add ADUs. This parcel contains just a few Joshua Trees that add to the uniqueness and beauty of the properties in this region of the world, yet, won't inhibit your ability to build your home. The city's main water line is across the street, and power from the grid is on the property.

Overview

Property Status
Sold
Lot Size
0.53 Acres
MLS ID
SW24221294
Property Type
Land

Features & Amenities

Neighborhood
San Bernardino County
View Description
Desert, Mountain(s)
Water Source
Public
Utilites
Electricity Available, Water Available, Overhead Utilities, Sewer Not Available
Lot Features
0-1 Unit/Acre, Corners Marked, Desert Back, Desert Front
Sewer
None
Sales Price
$45,000
Zoning
Res

Downloads

54610 Navajo Trail

Schedule a Tour

I would love to help you see this beautiful home! As a full-service brokerage, we can help you tour. Please submit an offer, and answer questions about the buying process.

Enter a valid email

Thank you

for your interest in 54610 Navajo Trail, Yucca Valley, CA 92284

back to page
54610 Navajo Trail
Navigate

54610 Navajo Trail
explore in 3d

I'm Interested In

54610 Navajo Trail

or
  • CallCliff Clifford

    License #01999965

    951-821-5235
  • Follow Us On Instagram